Az értékesítő:
Várszegi Tamás
+36 20 428 4477

Eladó lakás Győr, 74 900 000 Ft, 73 négyzetméter

74 900 000 Ft
lakás, 73 négyzetméter
Egész szobák:
3
Ingatlan állapota:
Azonosító:
11573340
Értékesítés típusa:
eladó
Ingatlan típusa:
lakás
Település:
Győr
Alapterület:
73
Ár:
74 900 000 Ft
Emelet:
1. emelet
Fűtés jellege:
Cirkó
Erkély:
Nincs
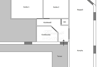
Győr Sziget frekventált részén, a Belváros kulturális és kereskedelmi központjától pár percre eladó egy 73 m²-es, nappali + 2 szobás téglaépítésű lakás. Az első emeleten található, 2002-ben kialakított lakást 2020 as években prémium minőségben teljes körűen felújították. CSAK A TRADÍCIÓ INGATLAN KÍNÁLATÁBAN! Energiahatékonyság és okosotthon: A lakás korszerű épületautomatizálási rendszere összehangoltan szabályozza az árnyékolást, a hővisszanyerős szellőzést, a radiátoros és elektromos padlófűtést, valamint a hűtést. Az automatizálás nemcsak kényelmet nyújt, hanem az iparági kutatások szerint átlagosan 5–15 %-kal is csökkentheti az energiafelhasználást. A 8 cm-es külső hőszigetelés, a műanyag nyílászárók és a precíz hővisszanyerős rendszer segítik a rezsi alacsony szinten tartását. A rendszer távolról vezérelhető, a beállítások okostelefonról módosíthatók, így mindig ideális hőmérséklet és friss levegő biztosítható. Kültéri életterek: A 2 m²-es erkélyről az utcára, a 7,5 m²-es fedett teraszról pedig a belső udvarra nyílik kilátás. A terasz ideális reggeli kávéhoz, olvasósaroknak vagy akár kisebb kerti sütögetéshez. A lakáshoz tartozó zárt udvari parkolóban saját autóbeálló és tároló könnyíti meg a mindennapokat. Elrendezés: A közlekedőből minden helyiség külön nyílik. A tágas nappali étkező és konyha közvetlenül kapcsolódik az erkélyhez; a két hálószoba igény szerint gyermek- vagy dolgozószobaként is használható. A bejáratnál lévő szeparált terasz pihenőhelynek is alkalmas. Felszereltség: • Konyha: prémium VINYL burkolat, tömörfa konyhabútor, fekete gránit munkalap, lacobel üveg hátfal, beépített Bosch gépek, borhűtő, GREE inverteres klíma. • Fürdőszoba és külön WC: mennyezetig érő greslap burkolat, kád és zuhany, elektromos padlófűtés, kombinált radiátor (elektromos vagy gázcirkó), egyedi, fűthető tükör, integrált szagelszívás. • Szobák: VINYL burkolat, beépített IKEA gardróbszekrények. • Előszoba: egyedi beépített szekrény, VINYL burkolat. • Extra: automata alumínium redőnyök, hangulatvilágítás, riasztórendszer, alacsony közös költség (jelenleg 7 000 Ft). Komfort és rezsi: A hővisszanyerős szellőzőrendszer folyamatos friss por és pollenmentes levegőt biztosít, a fűtés és hűtés pedig a mindenkori igényhez igazodik. A gépészet és az automatizált vezérlés együttese segít optimalizálni az energiafelhasználást és minimalizálni a rezsiköltségeket. Hasonló okosotthon-felszereltség még manapság is leginkább csak az új építésű lakások felső kategóriájánál jellemző, így ez a lakás kiemelkedő a korosztályában. Lokáció és szolgáltatások: Néhány perc sétára találhatók boltok, iskolák, óvodák, bölcsődék, buszmegállók és rekreációs lehetőségek. A Belváros közelsége élénk kulturális és gasztronómiai kínálatot biztosít, miközben a Sziget városrész zöld területei megőrzik a nyugalmat. Vételi lehetőség: Az ingatlan igény szerint bútorozottan is megvásárolható. További információért és megtekintésért kérem, keressen bizalommal. A TRADÍCIÓ INGATLANIRODA AZ ALÁBBI SZOLGÁLTATÁSOKKAL ÁLL AZ ÜGYFELEK RENDELKEZÉSÉRE: - LAKOSSÁGI ÉS IPARI INGATLANOK ÉRTÉKESÍTÉSE ÉS BÉRBEADÁSA - DÍJMENTES PÉNZÜGYI TANÁCSADÁS, HITELÜGYINTÉZÉS, LAKÁSHITELEK, ÁLLAMI TÁMOGATÁSOK / CSOK, ÁFA / , BABAVÁRÓ HITEL, SZEMÉLYI KÖLCSÖN, LAKÁSTAKARÉK, BIZTOSÍTÁS - JOGI HÁTTÉR, ADÁSVÉTELI SZERZŐDÉSEK KÉSZÍTÉSE KEDVEZŐ FELTÉTELEKKEL - ENERGETIKAI TANÚSÍTVÁNY KÉSZÍTÉSE - INGATLAN ÉRTÉKBECSLÉS AMENNYIBEN GYŐRI, ILL. GYŐR KÖRNYÉKI, ELADÓ VAGY KIADÓ INGATLANNAL RENDELKEZIK, KÉREM HÍVJON!
https://ingatlanok.hu/elado/lakas/gyor/75-millio-ft;73-negyzetmeter;3-szoba;nincs-megadva-epitesu/11573340